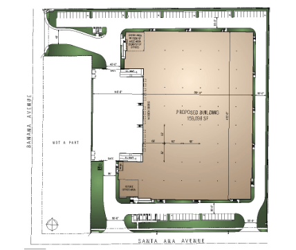
Santa Ana Commerce Center

Stream Southern California
Construction Management Development Services Landlord Representation Marketing Project Management
Fee Development
159,098 SF
Led by Stream as fee developer on behalf of Cabot, Santa Ana Commerce Center achieved fully entitled status in the fourth quarter of 2019 and the development is on track to break ground in the first quarter of 2020.
PROVEN PERFORMANCE
  • Opportunity

    Upon review of this opportunity, Stream quickly underwrote and subsequently tied up this off-market industrial site located in Fontana’s SWIP. Despite working with a tight inspection period allotted by the sellers, Stream led a successful due diligence effort and closed as fee developer alongside Cabot Properties, with whom Stream has a long-standing relationship. The development presented the opportunity for Cabot to expand its investment footprint in the Inland Empire (IE) and Stream to plant its industrial development flag in the IE.

  • Strategy

    This development resulted from the team’s methodical site selection approach that focused on identifying well-located real estate west of I-215 with inplace industrial zoning. With the desired zoning in place, this site additionally offered future tenants excellent access to several major thoroughfare via Slover Avenue, I-10, I-15 and Route 60. In terms of the construction and design, the team’s primary goals were to design a site with efficient coverage, functional divisibility and flexible ingress/egress.

Results

Led by Stream as fee developer on behalf of Cabot, Santa Ana Commerce Center achieved fully entitled status in the fourth quarter of 2019 and the development is on track to break ground in the first quarter of 2020.

“Growing with our clients is one of the best byproducts of our development business. Santa Ana Commerce Center is an excellent example of that relationship as Stream helped Cabot expand their Inland Empire footprint and Cabot helped Stream break into the market. Perfect outcome.”

Marty Pupil, Executive Managing Director Stream Realty Partners
Link
Next Project

International Logistics Center